X
XLinkedinWhatsAppTelegramTelegram
0

Valutazione del benessere delle scrofe in cinque ambiti in un nuovo sistema di parto libero

Dall'Australia una soluzione originale alternativa alle nuove proposte di lattazione libera...

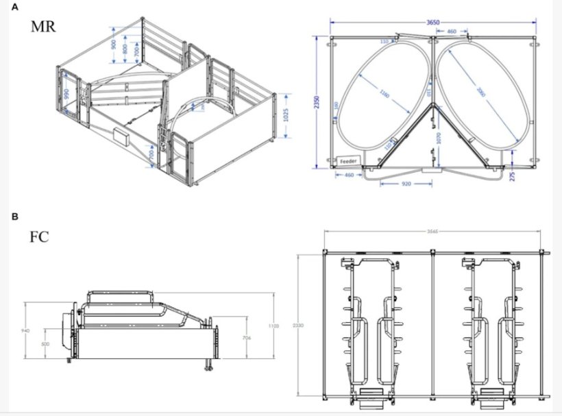
Dimensioni delle caratteristiche principali del design dell'anello di maternità (MR) (A) e della gabbia da parto (FC) (B).Front. Vet. Sci. 11:1339947. doi: 10.3389/fvets.2024.1339947
Dimensioni delle caratteristiche principali del design dell'anello di maternità (MR) (A) e della gabbia da parto (FC) (B).Front. Vet. Sci. 11:1339947. doi: 10.3389/fvets.2024.1339947
26 Marzo 2026
X
XLinkedinWhatsAppTelegramTelegram
0

Il Maternity Ring è stato sviluppato come alternativa libera alle gabbie per il parto, preservando lo spazio e offrendo alla scrofa libertà di movimento con spazi contenuti. Questo esperimento mirava ad applicare il modello delle 5 libertà per valutare il benessere delle scrofe nel Maternity Ring rispetto alla gabbia parto.

Materiali e Metodi: 88 scrofe sono state alloggiate in una gabbia parto (FC-farrowing crate) e 83 in un Maternity Ring (MR), e le misurazioni raccolte si sono concentrate su alimentazione, ambiente, salute, comportamento e stato mentale.

Dimensioni delle caratteristiche principali del design dell'anello di maternità (MR) (A) e della gabbia da parto (FC) (B).Front. Vet. Sci. 11:1339947. doi: 10.3389/fvets.2024.1339947
Dimensioni delle caratteristiche principali del design dell'anello di maternità (MR) (A) e della gabbia da parto (FC) (B).Front. Vet. Sci. 11:1339947. doi: 10.3389/fvets.2024.1339947

Risultati: Le scrofe MR hanno consumato meno mangime rispetto alle scrofe FC (assunzione totale di mangime: 93,8 ± 3,06 kg contro 111,2 ± 3,13 kg; p < 0,001) ma hanno avuto una ridotta perdita di grasso dorsale P2 durante l'allattamento (0,0 ± 0,11 contro 1,2 ± 0,11, p < 0,001). Sono stati osservati meno comportamenti frustrati e legati al dolore durante il parto nelle scrofe MR (morso della barra: FC 3,3 ± 2,12 vs. MR 0,5 ± 0,29 eventi, p = 0,038, e zampa posteriore in avanti: FC 227 ± 50,7 vs. MR 127 ± 26,4 eventi, p = 0,019), e una % ridotta di scrofe MR presentava lesioni al muso dopo il parto (10% CI [5, 20] vs. 67% CI [47, 95], p < 0,001). Un numero maggiore di scrofe FC presentava danni alla mammella allo svezzamento (70% CI [48, 97] vs. 10% CI [6, 24], p < 0,001) e i loro suinetti venivano medicati più frequentemente rispetto a quelli in MR (51% CI [40, 61] vs. 30% [21, 41], p = 0,008). Le scrofe MR tendevano ad avere un punteggio di reazione più elevato alla manipolazione dei suinetti (MR 2,0 ± 0,38 vs. FC 1,2 ± 0,27, p = 0,094) e avevano più contatto con i suinetti una volta completata la procedura rispetto alle scrofe FC (rispettivamente 13,5 ± 2,55 vs. 6,9 ± 1,26 eventi, p = 0,016). Sebbene non vi fosse alcuna differenza nell'anticipazione al momento del pasto (p > 0,05), le scrofe MR mostravano una ridotta risposta di spavento ad uno stimolo acustico avversivo al giorno 18 (FC 2,8 ± 0,35, MR 0,7 ± 0,16, p < 0,001).

Conclusioni: Utilizzando il modello delle 5 libertà, le scrofe alloggiate nella MR durante il parto e l'allattamento hanno un benessere migliore rispetto a quelle alloggiate nella FC e possono essere considerate in uno stato affettivo positivo.

Plush K, Lines D, Staveley L, D’Souza D and van Barneveld R (2024) A five domains assessment of sow welfare in a novel free farrowing system. Front. Vet. Sci. 11:1339947. doi: 10.3389/fvets.2024.1339947

Commenti sull'articolo

Questo spazio non è dedicato alla consultazione agli autori degli articoli, ma uno spazio creato per essere un punto di incontro per discussioni per tutti gli utenti di 3tre3
Pubblica un nuovo commento

Per commentare ti devi registrare su 3tre3 ed essere connesso.

Non sei iscritto nella lista Ultima ora

Bollettino settimanale di notizie del mondo dei suini

Fai il log in e spunta la lista

Non sei iscritto nella lista la web in 3 minuti

Un riassunto settimanale delle news di 3tre3.it

Fai il log in e spunta la lista