Plush K, Lines D, Staveley L, D’Souza D and van Barneveld R (2024) A five domains assessment of sow welfare in a novel free farrowing system. Front. Vet. Sci. 11:1339947. doi: 10.3389/fvets.2024.1339947
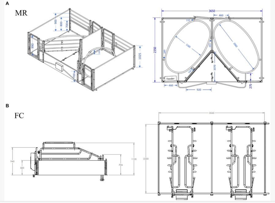
26-Mar-2026 (1 mesi 28 giorni fa)Il Maternity Ring è stato sviluppato come alternativa libera alle gabbie per il parto, preservando lo spazio e offrendo alla scrofa libertà di movimento con spazi contenuti. Questo esperimento mirava ad applicare il modello delle 5 libertà per valutare il benessere delle scrofe nel Maternity Ring rispetto alla gabbia parto.
Materiali e Metodi: 88 scrofe sono state alloggiate in una gabbia parto (FC-farrowing crate) e 83 in un Maternity Ring (MR), e le misurazioni raccolte si sono concentrate su alimentazione, ambiente, salute, comportamento e stato mentale.

Risultati: Le scrofe MR hanno consumato meno mangime rispetto alle scrofe FC (assunzione totale di mangime: 93,8 ± 3,06 kg contro 111,2 ± 3,13 kg; p < 0,001) ma hanno avuto una ridotta perdita di grasso dorsale P2 durante l'allattamento (0,0 ± 0,11 contro 1,2 ± 0,11, p < 0,001). Sono stati osservati meno comportamenti frustrati e legati al dolore durante il parto nelle scrofe MR (morso della barra: FC 3,3 ± 2,12 vs. MR 0,5 ± 0,29 eventi, p = 0,038, e zampa posteriore in avanti: FC 227 ± 50,7 vs. MR 127 ± 26,4 eventi, p = 0,019), e una % ridotta di scrofe MR presentava lesioni al muso dopo il parto (10% CI [5, 20] vs. 67% CI [47, 95], p < 0,001). Un numero maggiore di scrofe FC presentava danni alla mammella allo svezzamento (70% CI [48, 97] vs. 10% CI [6, 24], p < 0,001) e i loro suinetti venivano medicati più frequentemente rispetto a quelli in MR (51% CI [40, 61] vs. 30% [21, 41], p = 0,008). Le scrofe MR tendevano ad avere un punteggio di reazione più elevato alla manipolazione dei suinetti (MR 2,0 ± 0,38 vs. FC 1,2 ± 0,27, p = 0,094) e avevano più contatto con i suinetti una volta completata la procedura rispetto alle scrofe FC (rispettivamente 13,5 ± 2,55 vs. 6,9 ± 1,26 eventi, p = 0,016). Sebbene non vi fosse alcuna differenza nell'anticipazione al momento del pasto (p > 0,05), le scrofe MR mostravano una ridotta risposta di spavento ad uno stimolo acustico avversivo al giorno 18 (FC 2,8 ± 0,35, MR 0,7 ± 0,16, p < 0,001).
Conclusioni: Utilizzando il modello delle 5 libertà, le scrofe alloggiate nella MR durante il parto e l'allattamento hanno un benessere migliore rispetto a quelle alloggiate nella FC e possono essere considerate in uno stato affettivo positivo.